Egret Solar হল PV মাউন্টিং সলিউশনের একটি বিশেষ প্রদানকারী, এখানে প্রবর্তিত সোলার প্যানেল মাউন্ট রুফ ক্ল্যাম্প বাল্ক অর্ডার এবং অন্যান্য বৃহৎ সংগ্রহের প্রয়োজনের জন্য উপলব্ধ। ছাদের বাতা বিশেষভাবে ট্র্যাপিজয়েডাল ঢেউতোলা ইস্পাত ছাদ মিটমাট করার জন্য ডিজাইন করা হয়েছে এবং একটি নন-ড্রিল ব্যবহার করে, যা সরাসরি ধাতব প্যানেলের ক্রেস্টে মাউন্ট করে। বাজেটের সীমাবদ্ধতার অধীনে পরিচালিত PV প্রকল্পগুলির জন্য, এই ছাদের ক্ল্যাম্প নির্বাচন করা অব্যবহৃত ছাদের মার্জিনকে কমিয়ে দেয়, যার ফলে ছাদ এলাকার ইনস্টল করা ক্ষমতা সর্বাধিক হয়। একটি স্যান্ডব্লাস্টেড সারফেস ফিনিস সহ উচ্চ-শক্তির স্টেইনলেস স্টিল থেকে নির্মিত এবং একটি EPDM ওয়াটারপ্রুফ রাবার প্যাডের সাথে যুক্ত।
ঢেউতোলা ইস্পাত ছাদ সোলার ক্ল্যাম্পের প্রাথমিক কাজ হল রঙিন ইস্পাত ছাদ প্রোফাইলের ক্রেস্টে পিভি মডিউলগুলিকে সুরক্ষিতভাবে বেঁধে রাখা। কোন প্রাক-তুরপুন প্রয়োজন নেই, আপনি কেবল বৈদ্যুতিক স্ক্রু ড্রাইভার ব্যবহার করতে পারেন স্ব-ট্যাপিং স্ক্রুগুলি সরাসরি ফিক্সেশনের জন্য ক্ল্যাম্পে চালাতে। আমাদের সোলার মাউন্টিং ক্ল্যাম্পগুলি EPDM দিয়ে সজ্জিত, যা নিশ্চিত করে যে ছাদের জলরোধী স্তরটি অক্ষত রয়েছে৷ ছাদের ক্ল্যাম্প অনুভূমিক মডিউল লেআউটের জন্য ডিজাইন করা হয়েছে, যদি আপনার উল্লম্ব মডিউল লেআউটের প্রয়োজন হয়, এগ্রেট সোলার সেই উদ্দেশ্যে সৌর মাউন্টিং রুফ ক্ল্যাম্পও অফার করে। ট্র্যাপিজয়েডাল রঙিন ইস্পাত ছাদের সাথে সামঞ্জস্যপূর্ণ, এই ক্ল্যাম্পটি বাণিজ্যিক এবং শিল্প PV পাওয়ার স্টেশনগুলির জন্য একটি গুরুত্বপূর্ণ উপাদান হিসাবে কাজ করে।

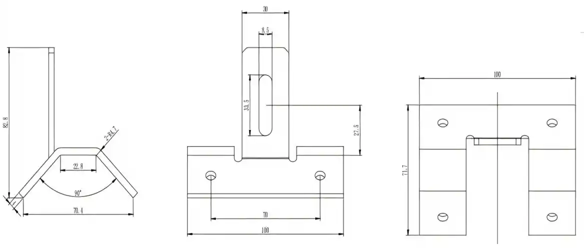
আমাদের সোলার মাউন্টিং ক্ল্যাম্প স্টেইনলেস স্টীল থেকে এবং স্যান্ডব্লাস্টেড সারফেস ফিনিস দিয়ে তৈরি করা হয়। যে চমৎকার শক্তি এবং জারা প্রতিরোধের প্রস্তাব. এটি একটি EPDM রাবার প্যাড সহ যা ছাদের টাইলের পৃষ্ঠের সাথে শক্তভাবে মানিয়ে যায়, ছাদের টাইলের জন্য একটি জলরোধী সীলমোহর নিশ্চিত করে। আমাদের স্ট্যান্ডার্ড রুফটপ পিভি ক্ল্যাম্প 100 মিমি দৈর্ঘ্য পরিমাপ করে, নীচের চিত্রটি নির্দিষ্ট মাত্রা বিশদ সহ। আমরা আপনার ছাদের নির্দিষ্ট টাইল প্রোফাইল অনুসারে মাত্রাগুলিও কাস্টমাইজ করতে পারি।
| পণ্যের নাম | সৌর ট্র্যাপিজয়েডাল ছাদ ক্ল্যাম্প |
| উপাদান | 304 স্টেইনলেস স্টীল/EPDM |
| সারফেস ট্রিটমেন্ট | স্যান্ডব্লাস্টিং |
| দৈর্ঘ্য | 100 মিমি, কাস্টমাইজড আকার |
| ইনস্টলেশন ওরিয়েন্টেশন | অনুভূমিক |

সৌর ট্র্যাপিজয়েডাল ছাদের ক্ল্যাম্পের জন্য একটি মডুলার অ্যাসেম্বলি ডিজাইনের বৈশিষ্ট্য রয়েছে, যাতে এটি এগ্রেট সোলার দ্বারা গঠিত47 মিমি রেল, রেল সংযোগকারী, এবং অন্যান্য আনুষাঙ্গিক একটি সম্পূর্ণ সৌর ধাতু ছাদ মাউন্ট সিস্টেম গঠন. ট্র্যাপিজয়েডাল ঢেউতোলা ইস্পাত ছাদের ক্ল্যাম্প M8 বোল্টের মাধ্যমে 47 মিমি রেলকে সুরক্ষিত করে এবংস্লাইড বাদাম, যখন মিড ক্ল্যাম্প এবং এন্ড ক্ল্যাম্প সৌর মডিউলগুলিকে দৃঢ়ভাবে বেঁধে রাখার জন্য রেলের উপর অবস্থান করে। আমরা আপনার পিভি মডিউলগুলির মাত্রা অনুসারে শেষ ক্ল্যাম্পের উচ্চতা এবং বোল্টগুলির দৈর্ঘ্য গণনা করব।

PV মডিউলগুলির জন্য আপনার পার্শ্বীয় লেআউট পরিকল্পনার উপর ভিত্তি করে, নো-ড্রিল সোলার রুফ ক্ল্যাম্পগুলিকে রঙিন স্টিলের ছাদের শীটের ক্রেস্টের বিপরীতে রাখুন। পরবর্তী ধাপটি হল স্ক্রুগুলিকে শক্ত করতে একটি বৈদ্যুতিক স্ক্রু ড্রাইভার ব্যবহার করুন, ছাদের ক্ল্যাম্পের জন্য ইনস্টলেশন মাত্র দুই মিনিট সময় নেয়। এর পরে, বাদামটিকে রেলের মধ্যে স্লাইড করুন এবং M8 বোল্টগুলিকে শক্ত করুন। আপনার মডিউলগুলিকে রেলের উপর রাখুন, তারপরে সেগুলিকে নিরাপদ করতে মিড ক্ল্যাম্প এবং শেষ ক্ল্যাম্পগুলি ব্যবহার করুন৷ অবশেষে, নিশ্চিত করুন যে ইনস্টলেশন সম্পূর্ণ করার জন্য কোন শিথিলতা নেই।

মেটাল রুফের পিভি ক্ল্যাম্পের স্ট্যান্ডার্ড শক্ত কাগজের মাত্রা হল 540 x 220 x 220 মিমি। স্ট্যান্ডার্ড কনফিগারেশনে প্রতি শক্ত কাগজে 60 সেট থাকে এবং স্ক্রুগুলি পৃথকভাবে ব্যাগ করা হয় যাতে ক্ষতি রোধ করা যায়, সেইসাথে ট্রানজিটের সময় স্ক্র্যাচ এবং আর্দ্রতা থেকে রক্ষা করা যায়।


প্রশ্ন 1: কোন ধরনের রঙিন ইস্পাত ছাদ শীট ছাদের বাতা সঙ্গে সামঞ্জস্যপূর্ণ?
উত্তর: এটি মূলধারার ট্র্যাপিজয়েডাল রঙের ইস্পাত ছাদের শীটগুলির সাথে সামঞ্জস্যপূর্ণ। বিশেষ স্পেসিফিকেশন সহ শীট জন্য, আমরা কাস্টমাইজড clamps প্রদান করতে পারেন.
প্রশ্ন 2: ছাদের ক্ল্যাম্পের মাউন্টিং পদ্ধতি কি রঙিন ইস্পাত ছাদের জলরোধীকরণের সাথে আপস করে?
উত্তর: না, তা হয় না। EPDM ওয়াটারপ্রুফিং গ্যাসকেট ছাদের পৃষ্ঠের সাথে শক্তভাবে ফিট করে, কার্যকরভাবে ছাদের অনুপ্রবেশের কারণে জলের ফুটো হওয়ার ঝুঁকি দূর করে।
প্রশ্ন 3: আপনি কি বড় অর্ডারের জন্য OEM/প্রাইভেট লেবেলিং করতে পারেন?
উত্তর: হ্যাঁ, আমরা বাল্ক অর্ডারের জন্য OEM করতে পারি। আমরা পণ্যের লেবেল, রঙ এবং অন্যান্য বিবরণের মতো জিনিস পরিবর্তন করতে পারি।
প্রশ্ন 4: এই ক্ল্যাম্পটি লাগাতে আমার কি একজন প্রো দরকার? এটা কিভাবে করতে হবে তার জন্য আপনার কি নির্দেশনা আছে?
উত্তর: এটি লাগানোর জন্য আপনার কোনো পেশাদারের প্রয়োজন নেই। আমরা আপনাকে ভিডিও বা দূরবর্তী প্রযুক্তিগত সহায়তা দিয়ে এটি রাখতে সাহায্য করতে পারি।