ইনস্টলেশনের আগে আপনাকে প্রস্তুত করতে হবে এমন আইটেমগুলির একটি তালিকা এখানে রয়েছে:
স্ক্রু ড্রাইভার: শক্তভাবে স্ক্রু শক্ত করতে ব্যবহৃত হয়।
পরিমাপ টেপ: বন্ধনীটি সঠিক অবস্থানে রয়েছে তা নিশ্চিত করতে ব্যবহৃত হয়।
স্তর: বন্ধনীটি অনুভূমিকভাবে ইনস্টল করা হয়েছে তা নিশ্চিত করতে ব্যবহৃত হয়।
প্রাক-একত্রিত ট্রাইপড সাপোর্ট, রেল এবং রেল স্প্লাইস,মিড ক্ল্যাম্পএবং এন্ড ক্ল্যাম্প 、 রেল ক্ল্যাম্প 、 গ্রাউন্ডিং ক্লিপ এবংগ্রাউন্ডিং লগ、ব্যালাস্ট ট্রে、M8*60 হেক্স বোল্ট এবং M8 ফ্ল্যাঞ্জ নাট। এটি লক্ষ করা উচিত যে আপনাকে সিমেন্ট ব্লকগুলি নিজেই সরবরাহ করতে হবে।



প্রি-অ্যাসেম্বল করা বন্ধনীটি উন্মোচন করুন এবং ট্রাইপড বন্ধনীকে সুরক্ষিত করতে নীচের চিত্রে চিহ্নিত A, B এবং C পয়েন্টে M8*60 হেক্স বোল্ট এবং M8 ফ্ল্যাঞ্জ নাট ইনস্টল করুন।
অঙ্কন অনুসারে, সোলার ফ্ল্যাট রুফ মাউন্টিং সিস্টেমে প্রাক-একত্রিত ট্রাইপড সমর্থনগুলি 2500 মিমি ব্যবধানে সাজানো হয়েছে।
ব্যালাস্ট ট্রেটিকে আগে থেকে একত্রিত ট্রাইপড সমর্থনে পালাক্রমে রাখুন এবং দুটি ব্যালাস্ট ট্রের মধ্যে ব্যবধান প্রায় 1275 মিমি, যেমন চিত্রে দেখানো হয়েছে।
ব্যালাস্ট ট্রেতে কংক্রিট ব্লক রাখুন। এটি লক্ষ করা উচিত যে একটি প্রাক-একত্রিত ট্রাইপড সমর্থন চারটি কংক্রিট ব্লক দ্বারা সমর্থিত হওয়া প্রয়োজন এবং প্রতিটি কংক্রিট ব্লকের ওজন কমপক্ষে 60 কেজি হওয়া উচিত। কংক্রিট ফ্ল্যাট রুফ ব্যালাস্ট সোলার মাউন্টিং সিস্টেমে সিমেন্ট ব্লকের মাত্রা এবং বসানো নিচের চিত্রে দেখানো হয়েছে।
উপরোক্ত ইনস্টলেশনের ধাপগুলি সম্পন্ন হওয়ার পরে প্রি-অ্যাসেম্বল করা ট্রাইপড সমর্থন, ব্যালাস্ট ট্রে এবং কংক্রিট ব্লকের একটি শীর্ষ দৃশ্য নিচে দেওয়া হল।
রেল স্প্লাইস ব্যবহার করে রেলগুলিকে সংযুক্ত করুন এবং চিত্রে দেখানো হিসাবে পূর্বে একত্রিত ট্রাইপড বন্ধনীতে রেল ক্ল্যাম্পগুলিকে ঠিক করুন।
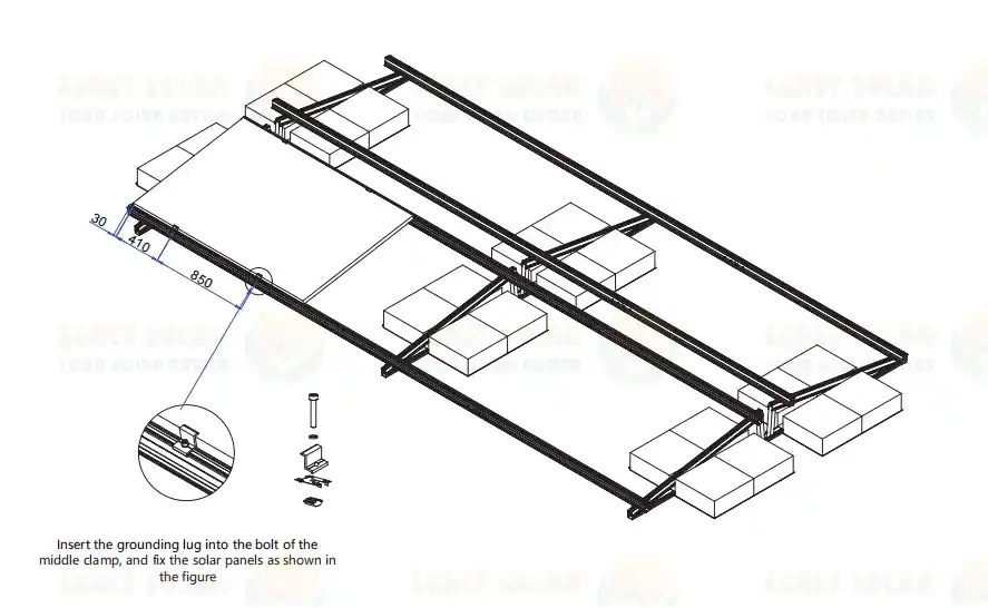
সৌর প্যানেলটি রেলের উপর রাখুন এবং মিড ক্ল্যাম্পের বোল্টে গ্রাউন্ডিং ক্লিপটি ঢোকান, যেমন চিত্রে দেখানো হয়েছে।
সৌর প্যানেলগুলিকে ক্রমানুসারে রাখুন, এবং তারপরে মিড ক্ল্যাম্প এবং এন্ড ক্ল্যাম্পগুলিকে সুরক্ষিত করতে ইনস্টল করুন, যেমনটি চিত্রে দেখানো হয়েছে৷ এটি সমগ্র পূর্ব-পশ্চিম সোলার ব্যালাস্টেড মাউন্টিং সিস্টেমের ইনস্টলেশন সম্পূর্ণ করে।



